
Al-Ahyaa
Prime Hrg
Majra Resort Hurghada: Your Turquoise Haven on the Red Sea
Discover Majra, a luxurious residential resort by Prime Development, perfectly situated in Hurghada between El Gouna and Hurghada International Airport, with direct access to the serene Red Sea. Embodying "The Turquoise Mantra," Majra offers a tranquil escape that blends natural beauty with sophisticated simplicity.
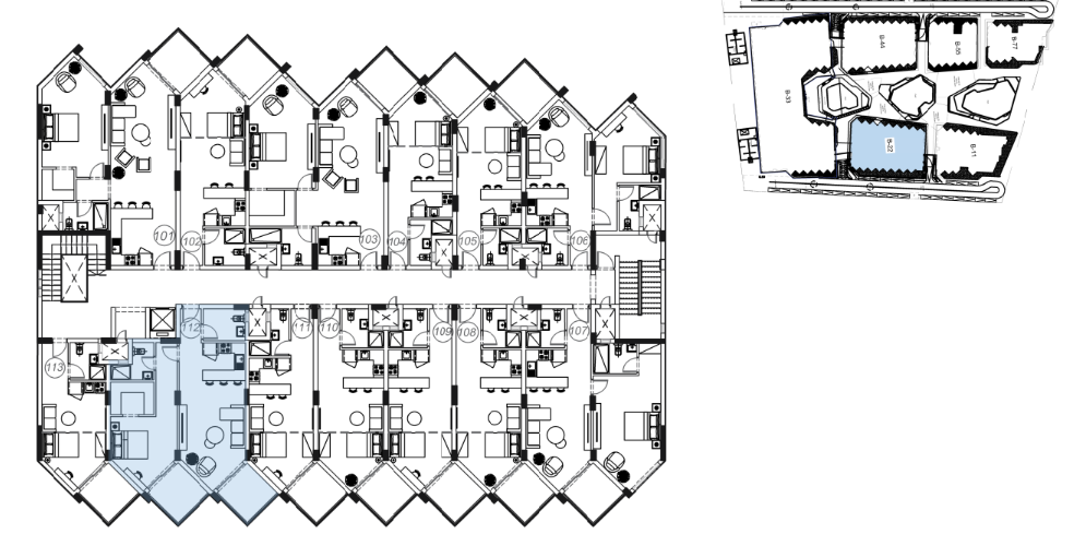
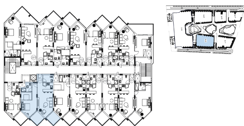
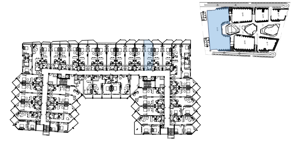
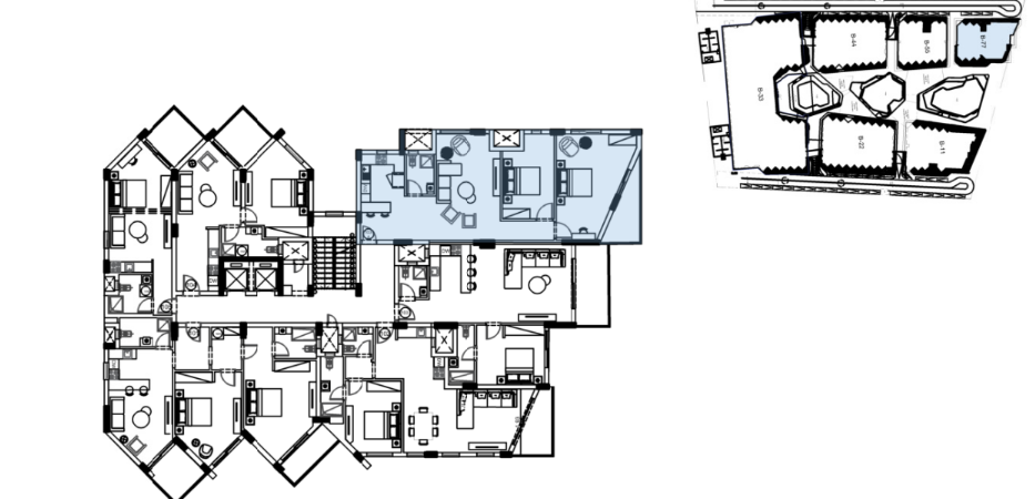
Over 95% of our 300 exclusive units, ranging from stylish studios to spacious duplexes and penthouses, boast breathtaking sea views. At Majra, you're not just buying a home; you're embracing a lifestyle of ultimate relaxation and endless recreation.
Indulge in our world-class amenities:
* Club House: Start your day with coffee and a stunning turquoise water view.
* Health Club: Stay active in our state-of-the-art gym.
* Heated Pool: Enjoy a swim any time of the year.
* Kids Area: A safe and fun-filled playground for your children.
* Water Sports: Dive into adventure with activities like diving, sailing, and jet-skiing.
* Spa: Rejuvenate your mind and body in our luxurious spa.
Majra is more than a home; it's a sanctuary where you can unwind, recharge, and create lasting memories.
Share On